地下鉄 南北線 麻生駅徒歩1分3LDK
お気に入りに
追加する


設備・特徴
チェックポイント
☆地下鉄南北線「麻生」駅徒歩1分
☆徒歩4分のところに駐車場確保済み
☆11階南東角部屋で陽当たり良好
☆2018年リフォーム済み
☆即引渡し可能
☆駐車場2台分有り 3LDK
お気に入りに
追加する


設備・特徴
チェックポイント
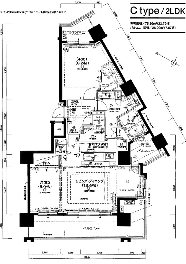
札幌中心部で桑園駅徒歩3分の快適な暮らし。南西向き2LDKは陽当たり良好◎
お気に入りに
追加する


設備・特徴
チェックポイント
☆ペット相談可能
☆南西向き陽当たり良好
☆省エネ型都市ガス暖房&給湯
☆フルオートバスシステム
☆対面オープンシステムキッチン
☆駐車場複数台契約可能
お気に入りに
追加する

設備・特徴
チェックポイント
新さっぽろ駅徒歩2分の好立地!
お気に入りに
追加する


設備・特徴
チェックポイント
★ペット相談可(犬、猫、等)
☆駐車場空きあり(機械式駐車場)、来客駐車場あり
★南向きで陽当たり良好
☆2LDK⇒3LDKに間取り変更可能
★給湯・暖房 灯油セントラル
☆地下にトランクルーム有
南北線 北18条駅 徒歩2分 最上階2LDK
お気に入りに
追加する


設備・特徴
チェックポイント
★最上階の8階のお部屋
☆建物下の駐車場空きあり
★南西向きで陽当たり良好
☆即引渡可能
お気に入りに
追加する
設備・特徴
チェックポイント
☆さっぽろ駅徒歩8分
お気に入りに
追加する


設備・特徴
チェックポイント
☆15階建て11階部分の陽当たり・眺望良好
☆南西角部屋
☆灯油暖房&灯油給湯
☆ペット相談可能
オール都市ガスで光熱費がおトク!
内装リフォーム済みのデザイナーズルーム
お気に入りに
追加する


設備・特徴
チェックポイント
◆JR新琴似駅徒歩3分
◇地下鉄麻生駅徒歩5分
◆南東向きで陽当たり良好
◇小型犬・猫飼育可能
11階のお部屋で日当たり・眺望良好です♪
内装完了。清掃中です。
お気に入りに
追加する


設備・特徴
チェックポイント
☆南東・南西の角部屋
☆対面オープンキッチン
☆灯油給湯・暖房
☆全部屋フローリング張替
☆全部屋壁紙張替
☆ペット可
物件を探すクリックで検索フォームが開きます